Vedi annunci

Appartamento

Via Panfilo Castaldi 35, Milano

850.000 €

100100 m2
33 locali
22 bagni
Descrizione immobile

----------- per info e appuntamenti WhatsApp 3460848654 ------------

UBICAZIONE: L' appartamento si trova nel cuore di Porta Venezia, a pochi passi dalla linea Metropolitana MM1, in un quartiere vivo e ricco di ogni tipo di servizio di prima necessità: scuole, aree verdi, ristoranti, farmacie, supermercati e mezzi di trasporto pubblico.

PALAZZO: Contesto d'epoca con ascensore, ben conservato nelle parti comuni.

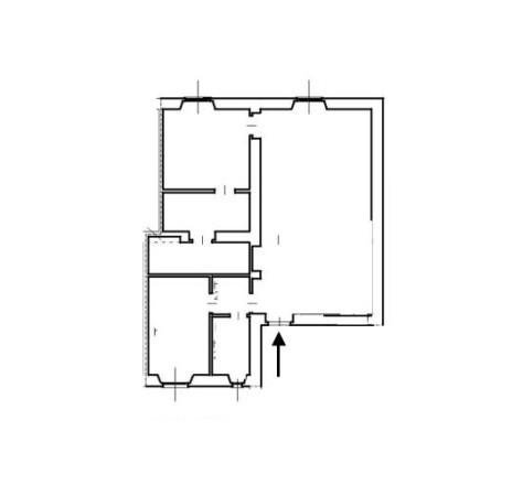
APPARTAMENTO: La soluzione proposta è uno ampio trilocale completamente ristrutturato con finiture di pregio, con doppio affaccio molto luminoso e silenzioso.

COMPOSTO DA: Ingresso su soggiorno con cucina a vista, a sinistra corridoio che conduce ad un ampio bagno con finestra e alla prima camera da letto, dotata di armadiature a muro su misura, con silenzioso affaccio interno. Altra ampia camera matrimoniale, cabina armadio walk-in, secondo bagno. Completa la proprietà una cantina di pertinenza.

FINITURE: L'appartamento presenta una ristrutturazione completa di ultimissima data, con finiture di pregio che comprendono parquet a spina di pesce, infissi in legno e doppio vetro, aria condizionata canalizzata, illuminazione generale da faretti led, e illuminazione perimetrale diffusa, progettata per creare luce d'atmosfera che valorizzi l'architettura degli spazi


Per ulteriori informazioni Ufficio Milano Via Rosolino Pilo, 20. mail: portavenezia@vogliocasamilano.it Il quartiere in cui lavoriamo, è ricco di servizi, mezzi di collegamento principali, che permettono di spostarsi con estrema facilità su tutto il territorio di Milano, oltre alla presenza di banche, supermercati, negozi di abbigliamento, ristoranti, edicole e farmacie e la vicinanza al centro. I dati riportati nel presente annuncio, le informazioni e le planimetrie sono indicativi e non costituiscono elemento contrattuale.

Caratteristiche immobile

Zona

Porta Venezia, Palestro, Monforte, Corridoni

Data immobile

22/11/2025

Contratto

Vendita

Prezzo

850.000 €

Tipologia

Appartamento

Superficie

100 m2

Locali

3

Bagni

2

Stato

Ristrutturato

Classe energetica

F 0

Piani stabile

5

Riscaldamento

Autonomo

Cucina

Cucina aperta

Mappa

Contatta l’agenzia

Cliccando Invia, dichiaro di aver preso visione dell'informativa privacy

Immobili simili
Milano
Appartamento
295.000 €
3737 m2
11 locale
11 bagno
Milano
Appartamento
1.180 € al mese
4545 m2
22 locali
11 bagno
Milano
Appartamento
1.000 € al mese
4040 m2
22 locali
11 bagno