Vedi annunci

Negozio

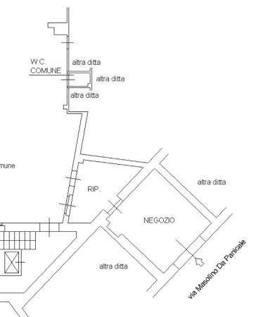
Via Masolino da Panicale 2, Milano

75.000 €

3030 m2
11 locale
11 bagno
Descrizione immobile

NEGOZIO AD ANGOLO IN VIA MASOLINO DA PANICALE, 2 MILANO Vogliocasa Milano Accursio propone: un negozio di circa 30 metri quadrati di superficie locatizia con 1 grande vetrina, in perfetto stato di manutenzione ed impiantistica. Il locale si compone di 1 stanza e un ripostiglio con ingresso dal cortile interno. Posizione strategica con forte passaggio pedonale e carraio. Lo spazio e' comodo ai principali mezzi di superficie e sotterranei. Si tratta di un'imperdibile opportunità di cominciare o proseguire la vostra attività in una delle vie commerciali più frequentate a Milano, in un contesto funzionale. Impianto di climatizzazione presente. Disponibilità immediata Per ogni ulteriore informazione e per fissare un appuntamento contattare l'ufficio al numero 02.39520433. Non perdere l'opportunità di personalizzare questo spazio secondo il tuo gusto! Contattaci per maggiori informazioni e per prenotare una visita.

Caratteristiche immobile

Zona

Villapizzone, Ghisolfa, Certosa, Expo

Data immobile

08/11/2025

Contratto

Vendita

Prezzo

75.000 €

Tipologia

Negozio

Superficie

30 m2

Locali

1

Bagni

1

Stato

Ottime Condizioni

Classe energetica

G 0

Piani stabile

1

Riscaldamento

Centralizzato

Mappa

Contatta l’agenzia

Cliccando Invia, dichiaro di aver preso visione dell'informativa privacy

Immobili simili
Milano
Appartamento
315.000 €
7070 m2
33 locali
11 bagno
Milano
Appartamento
409.000 €
9393 m2
44 locali
11 bagno
Milano
Appartamento
279.000 €
7070 m2
22 locali
11 bagno