Vedi annunci

Appartamento

Via Domenico Scarlatti 19, Milano

479.000 €

100100 m2
33 locali
11 bagno
Descrizione immobile

----------- per info e appuntamenti WhatsApp 3460848654 ------------

UBICAZIONE: L' appartamento si trova in via Scarlatti 19, in una posizione molto strategica per la sua vicinanza con la stazione Centrale di Milano e la MM2 Centrale (linea verde), all'interno di un quartiere dotato di tutti i servizi di prima necessità, scuole, ristoranti, farmacie, supermercati e mezzi di trasporto pubblico.

PALAZZO: Contesto d'epoca in fase di rinnovo delle parti comuni, dotato di ascensore.

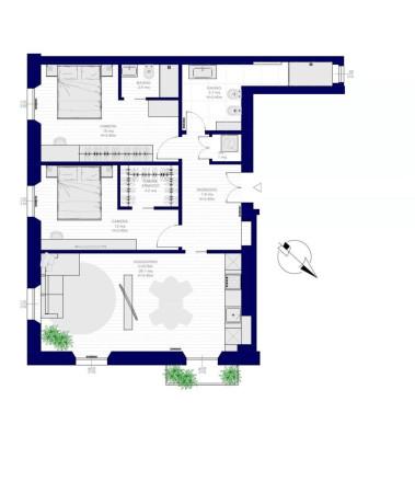
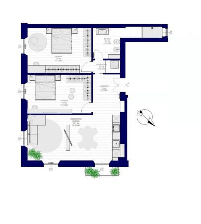
APPARTAMENTO: La soluzione proposta è un ampio trilocale con possibilità di ricavare una terza camera da letto, molto luminoso.

COMPOSTO DA: Ingresso, ampia cucina separata ed abitabile con balcone, soggiorno con esposizione angolare, due spaziose camere da letto matrimoniali, bagno finestrato.

Completano la proprietà due cantine ed un ampio solaio.

FINITURE: infissi in triplo vetro, pavimento in ceramica, stucchi a soffitto.
L'immobile ha una pianta rettangolare senza muri portanti con ampia possibilità di personalizzazione.

Per ulteriori informazioni Ufficio Milano Via Rosolino Pilo, 20. mail: portavenezia@vogliocasamilano.it Il quartiere in cui lavoriamo, è ricco di servizi, mezzi di collegamento principali, che permettono di spostarsi con estrema facilità su tutto il territorio di Milano, oltre alla presenza di banche, supermercati, negozi di abbigliamento, ristoranti, edicole e farmacie e la vicinanza al centro.

I dati riportati nel presente annuncio, le informazioni e le planimetrie sono indicativi e non costituiscono elemento contrattuale.

Caratteristiche immobile

Zona

Centrale, Bacone, Benedetto Marcello

Data immobile

29/10/2025

Contratto

Vendita

Prezzo

479.000 €

Tipologia

Appartamento

Superficie

100 m2

Locali

3

Bagni

1

Stato

Ottime Condizioni

Classe energetica

F 0

Piani stabile

4

Riscaldamento

Autonomo

Cucina

Cucina Abitabile

Mappa

Contatta l’agenzia

Cliccando Invia, dichiaro di aver preso visione dell'informativa privacy

Immobili simili
Milano
Appartamento
835.000 €
9090 m2
33 locali
22 bagni
Milano
Appartamento
1.150.000 €
110110 m2
33 locali
22 bagni
Milano
Appartamento
315.000 €
5353 m2
22 locali
11 bagno