Vedi annunci

Appartamento

Via Giosuè Carducci 27, Trezzano Sul Naviglio

295.000 €

105105 m2
44 locali
22 bagni
Descrizione immobile

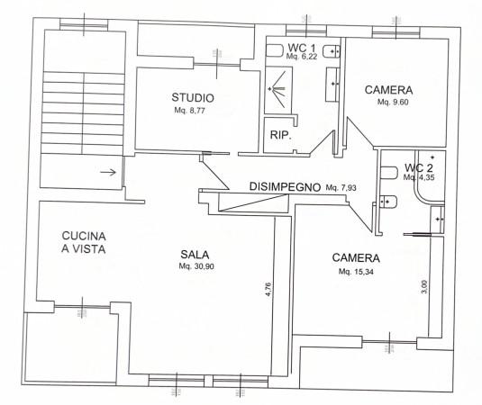
Scopri questo affascinante appartamento di 105 m², completamente ristrutturato e pronto per essere abitato. Situato al secondo piano senza ascensore, offre un ingresso su disimpegno che conduce a un luminoso soggiorno con cucina a vista. Da qui, si accede al primo balcone, perfetto per godere di piacevoli momenti all'aperto. La zona notte è ben separata e comprende una camera matrimoniale con accesso all'ultimo balcone, una cameretta adiacente al bagno e un bagno padronale con doccia e zona lavanderia.

L'appartamento dispone di doppi servizi, uno dei quali è un elegante bagno in suite dotato di vasca idromassaggio, ideale per rilassarsi dopo una lunga giornata. Inoltre, lo studio offre un accesso diretto al secondo balcone, creando uno spazio di lavoro tranquillo e ispiratore. Gli armadi a muro ottimizzano gli spazi, mentre la cantina fornisce ulteriore spazio di stoccaggio.

Il riscaldamento è autonomo a radiatori integrato con un impianto canalizzato a pellet e l'aria condizionata garantiscono comfort in ogni stagione, l'appartamento è inoltre dotato di pannelli fotovoltaici. Immerso in un contesto tranquillo con giardino e senza spese condominiali, questo appartamento è la scelta perfetta per chi cerca un'abitazione moderna e funzionale. Non perdere l'opportunità di visitarlo! Classe energetica E, consumo di energia 284,20 kWh/m² anno.

Caratteristiche immobile

Data immobile

07/11/2025

Contratto

Vendita

Prezzo

295.000 €

Tipologia

Appartamento

Superficie

105 m2

Locali

4

Bagni

2

Stato

Ristrutturato

Classe energetica

E 0

Piani stabile

2

Riscaldamento

Autonomo

Cucina

Angolo Cottura

Mappa

Contatta l’agenzia

Cliccando Invia, dichiaro di aver preso visione dell'informativa privacy

Immobili simili
Trezzano Sul Naviglio
Appartamento
289.000 €
8080 m2
33 locali
11 bagno
Milano
Attico
800 € al mese
3030 m2
11 locale
11 bagno
Milano
Appartamento
339.000 €
110110 m2
44 locali
11 bagno